1.1 超聲波熱量表測量原理
超聲波熱量表由3部分構成:超聲波流量傳感器、配對溫度傳感器和計算器。如圖1所示。

圖1 超聲波熱量表組成框圖
超聲波熱量表是在超聲波流量計的基礎上加上溫度測量,由流體的流量和供、回水溫差來計算出向用戶提供的熱量。其中流量測量部分是應用一對超聲波換能器相向交替(或同時)收發超聲波,通過觀測超聲波在介質中的順流和逆流傳播時間差來間接測量流體的流速,再通過流速來計算流量的一種間接測量方法。
1.2 系統結構
本文設計一種超聲波熱量表束流管件,安裝在超聲波熱量表的管道內,所述束流管件為圓柱形的管道,通過定位鎖緊螺釘固定在超聲波熱量表管道內的中軸線上,束流管件的管徑小于超聲波熱量表的管徑,如圖2所示。

圖2 整體結構示意圖
1.3 關鍵技術
超聲波傳感器測量原理的前提條件是管道中的液體流場要均勻分布,在管道截面上的每一點的流速都一樣,而這只是一種理想狀況。在實際應用中發 現,流場不能達到均勻分布,流場的速度分布不僅與流速、管道的粗細、管道的形狀、管道表面的粗糙度,甚至還和管道中液體的密度、液體的運動粘度等條件有 關,進而影響測量精度。
束流管件的管道內壁表面粗糙度Ra小于1.6μm,即輪廓算術平均偏差小于1.6μm。
束流管件的管道內固定有2個與管道內壁呈45°角的反射鏡,2個反射鏡的鏡面相對且非平行設置。
與現有技術相比,本實用新型的有益效果是:
采用束流管件調整流場,對流經超聲波熱量表的載熱液體人為加速,將小流量轉化為大流速進行測量,提高流場的均勻分布,保證熱量表的計量精度。
通過提高束流管件的管道內壁光潔度,降低為提高超聲波熱量表的管道內壁光潔度而產生的機械加工難度,在減少成本和降低難度的同時,提高超聲波熱量表的計量精度。
通過以45°角固定在束流管件管道中軸線上的反射鏡,反射傳遞超聲波傳感器發射的信號,有效信號不易衰減,提高了產品的使用壽命。
2 與反射式的比較
如圖3所示,在沒有安裝束流管件時,超聲波傳感器利用基表的管壁反射進行測量,超聲波傳感器發射后的信號通常是以管段內壁自身反射鏡、并且 只有一個反射點,在經過一次反射折射后,信號被另一只超聲波傳感器所接受,完成一個信號的傳播過程。但是根據流體學原理可知,流體在管道內的流速隨截面分 布的不同,其流速大小亦不同,其中中軸線上流速zui快,越靠近管壁流速越慢,管壁處的流速是零,所以管壁上很容易結垢、結晶,這樣日積月累導致有效信號逐漸 衰減,進而依靠管壁本身做信號反射鏡的產品使用壽命較短。

圖3 超聲波熱量表管道內未安裝束流管件的示意圖
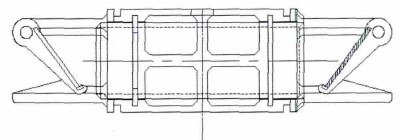
3 安裝實施步驟
結合圖4與具體安裝方式對本超聲波熱量表束流管件作進一步詳細描述。

1超聲波熱量表;2束流管件;3定位鎖緊螺釘;4反射鏡;5超聲波傳感器。
圖4 安裝束流管件示意圖
超聲波熱量表束流管件2為圓柱形的管道,束流管件2的管道內固定有2個與管道內壁呈45°角的反射鏡4,2個反射鏡4的鏡面相對且非平行設 置,在束流管件2內增加反射鏡4的面積,提高了超聲波熱量表1的測量精度。束流管件2通過定位鎖緊螺釘3固定在超聲波熱量表1管道內的中軸線上,進而使反 射鏡4也處在管道內中軸線上。束流管件2的管徑為D,超聲波熱量表的 管徑為d,載熱液體流經的管徑變小,對流經超聲波熱量表1的載熱液體人為加速,將小流量轉化為大流速進行測量,提高流場的均勻分布。束流管件2的管道內壁 表面粗糙度Ra小于1.6μm,即輪廓算術平均偏差小于1.6μm,通過提高束流管件2內壁的光潔度,能有效提高超聲波熱量表1的計量精度。
安裝時,先把反射鏡4以45°角安裝在束流管件2上,然后在超聲波熱量表1的管道中的軸線上,用定位鎖緊螺釘固定束流管件2,即完成束流管件2在超聲波熱量表1中的安裝。
在此需要強調的是,所述各模塊均為電路邏輯的集合,而非虛擬功能模塊。其具體實現是本領域常見技術手段,本領域技術人員通過閱讀,根據其掌握的常規技術手段完可以再現。
上一篇:渦街流量計的使用及維護
下一篇:對蒸汽流量計量產生影響的主要問題